Tel. cellulare: 335 7218853
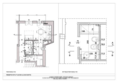
CASA VACANZE INVERNALI Località Borgata Grangesises - Sestriere (TO) anno: 2015 Ristrutturazione di alloggio per vacanze in località montana con ridefinizione degli spazi interni e dei servizi. Progettazione esecutiva, direzione lavori, coordinamento sicurezza e gestione cantiere.
© 2017, Alberto Porro, All Rights Reserved
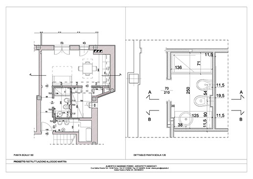
CASA VACANZE INVERNALI Località Borgata Grangesises - Sestriere (TO) anno: 2015 Ristrutturazione di alloggio per vacanze in località montana con ridefinizione degli spazi interni e dei servizi. Progettazione esecutiva, direzione lavori, coordinamento sicurezza e gestione cantiere.
© 2017, Alberto Porro, All Rights Reserved
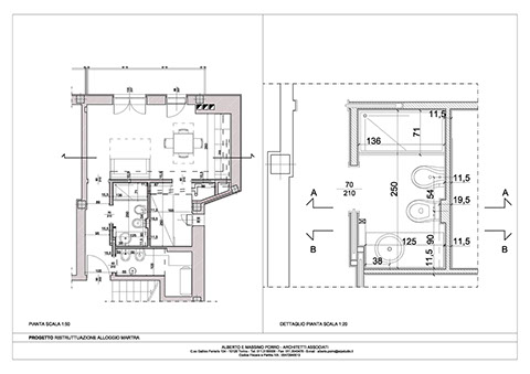
CASA VACANZE INVERNALI Località Borgata Grangesises - Sestriere (TO) anno: 2015 Ristrutturazione di alloggio per vacanze in località montana con ridefinizione degli spazi interni e dei servizi. Progettazione esecutiva, direzione lavori, coordinamento sicurezza e gestione cantiere.
© 2017, Alberto Porro, All Rights Reserved
Tel. cellulare: 335 7218853
CASA VACANZE INVERNALI Località Borgata Grangesises - Sestriere (TO) anno: 2015 Ristrutturazione di alloggio per vacanze in località montana con ridefinizione degli spazi interni e dei servizi. Progettazione esecutiva, direzione lavori, coordinamento sicurezza e gestione cantiere.
© 2017, Alberto Porro, All Rights Reserved
Tel. cellulare: 335 7218853
  •  

     

CASA VACANZE INVERNALI Località Borgata Grangesises - Sestriere (TO) anno: 2015 Ristrutturazione di alloggio per vacanze in località montana con ridefinizione degli spazi interni e dei servizi. Progettazione esecutiva, direzione lavori, coordinamento sicurezza e gestione cantiere.
© 2017, Alberto Porro, All Rights Reserved
CASA VACANZE INVERNALI Località Borgata Grangesises - Sestriere (TO) anno: 2015 Ristrutturazione di alloggio per vacanze in località montana con ridefinizione degli spazi interni e dei servizi. Progettazione esecutiva, direzione lavori, coordinamento sicurezza e gestione cantiere.
© 2017, Alberto Porro, All Rights Reserved
Tel. cellulare: 335 7218853
CASA VACANZE INVERNALI Località Borgata Grangesises - Sestriere (TO) anno: 2015 Ristrutturazione di alloggio per vacanze in località montana con ridefinizione degli spazi interni e dei servizi. Progettazione esecutiva, direzione lavori, coordinamento sicurezza e gestione cantiere.
© 2017, Alberto Porro, All Rights Reserved