Tel. cellulare: 335 7218853
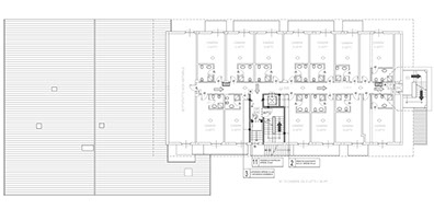
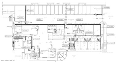
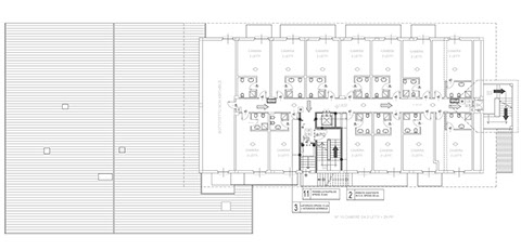
ETOILE DE NEIGE HOTEL Pila - Gressan (AO) anni: 2010 - 2015 Adeguamento dell'albergo alle normative antincendio e progetto di riqualificazione degli spazi comuni e delle stanze. Progettazione, Direzione Lavori, Coordinamento Sicurezza Attività di responsabile del servizio di prevenzione e protezione
© 2017, Alberto Porro, All Rights Reserved
ETOILE DE NEIGE HOTEL Pila - Gressan (AO) anni: 2010 - 2015 Adeguamento dell'albergo alle normative antincendio e progetto di riqualificazione degli spazi comuni e delle stanze. Progettazione, Direzione Lavori, Coordinamento Sicurezza Attività di responsabile del servizio di prevenzione e protezione
© 2017, Alberto Porro, All Rights Reserved
ETOILE DE NEIGE HOTEL Pila - Gressan (AO) anni: 2010 - 2015 Adeguamento dell'albergo alle normative antincendio e progetto di riqualificazione degli spazi comuni e delle stanze. Progettazione, Direzione Lavori, Coordinamento Sicurezza Attività di responsabile del servizio di prevenzione e protezione
© 2017, Alberto Porro, All Rights Reserved
Tel. cellulare: 335 7218853
ETOILE DE NEIGE HOTEL Pila - Gressan (AO) anni: 2010 - 2015 Adeguamento dell'albergo alle normative antincendio e progetto di riqualificazione degli spazi comuni e delle stanze. Progettazione, Direzione Lavori, Coordinamento Sicurezza Attività di responsabile del servizio di prevenzione e protezione
© 2017, Alberto Porro, All Rights Reserved
Tel. cellulare: 335 7218853
  •  

     

ETOILE DE NEIGE HOTEL Pila - Gressan (AO) anni: 2010 - 2015 Adeguamento dell'albergo alle normative antincendio e progetto di riqualificazione degli spazi comuni e delle stanze. Progettazione, Direzione Lavori, Coordinamento Sicurezza Attività di responsabile del servizio di prevenzione e protezione
© 2017, Alberto Porro, All Rights Reserved
ETOILE DE NEIGE HOTEL Pila - Gressan (AO) anni: 2010 - 2015 Adeguamento dell'albergo alle normative antincendio e progetto di riqualificazione degli spazi comuni e delle stanze. Progettazione, Direzione Lavori, Coordinamento Sicurezza Attività di responsabile del servizio di prevenzione e protezione
© 2017, Alberto Porro, All Rights Reserved
Tel. cellulare: 335 7218853
ETOILE DE NEIGE HOTEL Pila - Gressan (AO) anni: 2010 - 2015 Adeguamento dell'albergo alle normative antincendio e progetto di riqualificazione degli spazi comuni e delle stanze. Progettazione, Direzione Lavori, Coordinamento Sicurezza Attività di responsabile del servizio di prevenzione e protezione
© 2017, Alberto Porro, All Rights Reserved