Tel. cellulare: 335 7218853
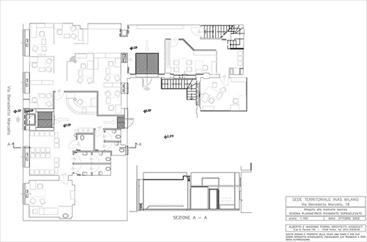
PATRONATO INAS - CISL - Istituto Nazionale Assistenza Sociale Viale Regina Margherita, 83/A - 00198 Roma anni: 2000 - 2007 Consulenza nella gestione del patrimonio edilizio dell'INAS (circa 100 sedi) sul territorio italiano con attività di controllo e programmazione degli interventi edilizi di adeguamento normativo, manutenzione straordinaria e ristrutturazione edilizia delle sedi. SEDE REGIONALE INAS Via Benedetto Marcello, 18 Milano anno: 2005 Progetto di ristrutturazione adeguamento normativo degli edifici della sede. Progetto esecutivo, D.L. e coordinamento sicurezza: Arch. Alberto Porro
© 2017, Alberto Porro, All Rights Reserved
PATRONATO INAS - CISL - Istituto Nazionale Assistenza Sociale Viale Regina Margherita, 83/A - 00198 Roma anni: 2000 - 2007 Consulenza nella gestione del patrimonio edilizio dell'INAS (circa 100 sedi) sul territorio italiano con attività di controllo e programmazione degli interventi edilizi di adeguamento normativo, manutenzione straordinaria e ristrutturazione edilizia delle sedi. SEDE REGIONALE INAS Via Benedetto Marcello, 18 Milano anno: 2005 Progetto di ristrutturazione adeguamento normativo degli edifici della sede. Progetto esecutivo, D.L. e coordinamento sicurezza: Arch. Alberto Porro
© 2017, Alberto Porro, All Rights Reserved
PATRONATO INAS - CISL - Istituto Nazionale Assistenza Sociale Viale Regina Margherita, 83/A - 00198 Roma anni: 2000 - 2007 Consulenza nella gestione del patrimonio edilizio dell'INAS (circa 100 sedi) sul territorio italiano con attività di controllo e programmazione degli interventi edilizi di adeguamento normativo, manutenzione straordinaria e ristrutturazione edilizia delle sedi. SEDE REGIONALE INAS Via Benedetto Marcello, 18 Milano anno: 2005 Progetto di ristrutturazione adeguamento normativo degli edifici della sede. Progetto esecutivo, D.L. e coordinamento sicurezza: Arch. Alberto Porro
© 2017, Alberto Porro, All Rights Reserved
Tel. cellulare: 335 7218853
PATRONATO INAS - CISL - Istituto Nazionale Assistenza Sociale Viale Regina Margherita, 83/A - 00198 Roma anni: 2000 - 2007 Consulenza nella gestione del patrimonio edilizio dell'INAS (circa 100 sedi) sul territorio italiano con attività di controllo e programmazione degli interventi edilizi di adeguamento normativo, manutenzione straordinaria e ristrutturazione edilizia delle sedi. SEDE REGIONALE INAS Via Benedetto Marcello, 18 Milano anno: 2005 Progetto di ristrutturazione adeguamento normativo degli edifici della sede. Progetto esecutivo, D.L. e coordinamento sicurezza: Arch. Alberto Porro
© 2017, Alberto Porro, All Rights Reserved
Tel. cellulare: 335 7218853
  •  

     

PATRONATO INAS - CISL - Istituto Nazionale Assistenza Sociale Viale Regina Margherita, 83/A - 00198 Roma anni: 2000 - 2007 Consulenza nella gestione del patrimonio edilizio dell'INAS (circa 100 sedi) sul territorio italiano con attività di controllo e programmazione degli interventi edilizi di adeguamento normativo, manutenzione straordinaria e ristrutturazione edilizia delle sedi. SEDE REGIONALE INAS Via Benedetto Marcello, 18 Milano anno: 2005 Progetto di ristrutturazione adeguamento normativo degli edifici della sede. Progetto esecutivo, D.L. e coordinamento sicurezza: Arch. Alberto Porro
© 2017, Alberto Porro, All Rights Reserved
PATRONATO INAS - CISL - Istituto Nazionale Assistenza Sociale Viale Regina Margherita, 83/A - 00198 Roma anni: 2000 - 2007 Consulenza nella gestione del patrimonio edilizio dell'INAS (circa 100 sedi) sul territorio italiano con attività di controllo e programmazione degli interventi edilizi di adeguamento normativo, manutenzione straordinaria e ristrutturazione edilizia delle sedi. SEDE REGIONALE INAS Via Benedetto Marcello, 18 Milano anno: 2005 Progetto di ristrutturazione adeguamento normativo degli edifici della sede. Progetto esecutivo, D.L. e coordinamento sicurezza: Arch. Alberto Porro
© 2017, Alberto Porro, All Rights Reserved
Tel. cellulare: 335 7218853
PATRONATO INAS - CISL - Istituto Nazionale Assistenza Sociale Viale Regina Margherita, 83/A - 00198 Roma anni: 2000 - 2007 Consulenza nella gestione del patrimonio edilizio dell'INAS (circa 100 sedi) sul territorio italiano con attività di controllo e programmazione degli interventi edilizi di adeguamento normativo, manutenzione straordinaria e ristrutturazione edilizia delle sedi. SEDE REGIONALE INAS Via Benedetto Marcello, 18 Milano anno: 2005 Progetto di ristrutturazione adeguamento normativo degli edifici della sede. Progetto esecutivo, D.L. e coordinamento sicurezza: Arch. Alberto Porro
© 2017, Alberto Porro, All Rights Reserved