Tel. cellulare: 335 7218853
IPSEMA (Istituto di Previdenza per il Settore Marittimo) anni: 2000 - 2008 Attività di consulenza nell'ambito della manutenzione edilizia, adeguamento normativo, ristrutturazione funzionale, gestione delle attività cantieristiche e coordinamento della sicurezza. Edificio per uffici Via Cantore, 3 - Genova anni: 2000 - 2002 Richiesta di certificato di prevenzione incendi. Progetto ARP Studio (Arch. G. Arlunno, G.M. Rapetti, Alberto e Massimo Porro Associati) Coordinamento sicurezza interventi di risanamento conservativo CSP/CSE A. Porro Sede compartimentale Via S. Nicola alla Dogana, 9 - Napoli anni: 2005 - 2008 Progetto di manutenzione straordinaria e adeguamento alle norme di prevenzione incendi. Progetto preliminare ed esecutivo di Alberto e Massimo Porro Arch. Associati. Direzione e coordinamento lavori a cura di Alberto Porro.
© 2017, Alberto Porro, All Rights Reserved
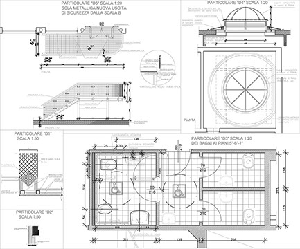
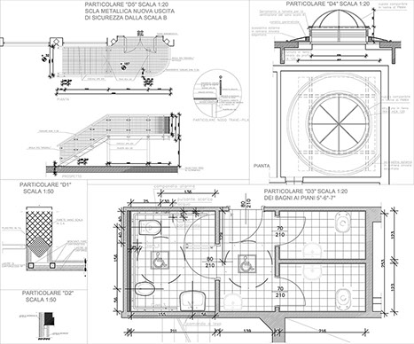
Sede compartimentale Via S. Nicola alla Dogana, 9 - Napoli anni: 2005 - 2008 Progetto di manutenzione straordinaria e adeguamento alle norme di prevenzione incendi. Progetto preliminare ed esecutivo di Alberto e Massimo Porro Arch. Associati. Direzione e coordinamento lavori a cura di Alberto Porro.
IPSEMA (Istituto di Previdenza per il Settore Marittimo) anni: 2000 - 2008 Attività di consulenza nell'ambito della manutenzione edilizia, adeguamento normativo, ristrutturazione funzionale, gestione delle attività cantieristiche e coordinamento della sicurezza. Edificio per uffici Via Cantore, 3 - Genova anni: 2000 - 2002 Richiesta di certificato di prevenzione incendi. Progetto ARP Studio (Arch. G. Arlunno, G.M. Rapetti, Alberto e Massimo Porro Associati) Coordinamento sicurezza interventi di risanamento conservativo CSP/CSE A. Porro
© 2017, Alberto Porro, All Rights Reserved
Sede compartimentale Via S. Nicola alla Dogana, 9 - Napoli anni: 2005 - 2008 Progetto di manutenzione straordinaria e adeguamento alle norme di prevenzione incendi. Progetto preliminare ed esecutivo di Alberto e Massimo Porro Arch. Associati. Direzione e coordinamento lavori a cura di Alberto Porro.
IPSEMA (Istituto di Previdenza per il Settore Marittimo) anni: 2000 - 2008 Attività di consulenza nell'ambito della manutenzione edilizia, adeguamento normativo, ristrutturazione funzionale, gestione delle attività cantieristiche e coordinamento della sicurezza. Edificio per uffici Via Cantore, 3 - Genova anni: 2000 - 2002 Richiesta di certificato di prevenzione incendi. Progetto ARP Studio (Arch. G. Arlunno, G.M. Rapetti, Alberto e Massimo Porro Associati) Coordinamento sicurezza interventi di risanamento conservativo CSP/CSE A. Porro
© 2017, Alberto Porro, All Rights Reserved
Tel. cellulare: 335 7218853
IPSEMA (Istituto di Previdenza per il Settore Marittimo) anni: 2000 - 2008 Attività di consulenza nell'ambito della manutenzione edilizia, adeguamento normativo, ristrutturazione funzionale, gestione delle attività cantieristiche e coordinamento della sicurezza. Edificio per uffici Via Cantore, 3 - Genova anni: 2000 - 2002 Richiesta di certificato di prevenzione incendi. Progetto ARP Studio (Arch. G. Arlunno, G.M. Rapetti, Alberto e Massimo Porro Associati) Coordinamento sicurezza interventi di risanamento conservativo CSP/CSE A. Porro Sede compartimentale Via S. Nicola alla Dogana, 9 - Napoli anni: 2005 - 2008 Progetto di manutenzione straordinaria e adeguamento alle norme di prevenzione incendi. Progetto preliminare ed esecutivo di Alberto e Massimo Porro Arch. Associati. Direzione e coordinamento lavori a cura di Alberto Porro.
© 2017, Alberto Porro, All Rights Reserved
Tel. cellulare: 335 7218853
  •  

     

IPSEMA (Istituto di Previdenza per il Settore Marittimo) anni: 2000 - 2008 Attività di consulenza nell'ambito della manutenzione edilizia, adeguamento normativo, ristrutturazione funzionale, gestione delle attività cantieristiche e coordinamento della sicurezza. Edificio per uffici Via Cantore, 3 - Genova anni: 2000 - 2002 Richiesta di certificato di prevenzione incendi. Progetto ARP Studio (Arch. G. Arlunno, G.M. Rapetti, Alberto e Massimo Porro Associati) Coordinamento sicurezza interventi di risanamento conservativo CSP/CSE A. Porro Sede compartimentale Via S. Nicola alla Dogana, 9 - Napoli anni: 2005 - 2008 Progetto di manutenzione straordinaria e adeguamento alle norme di prevenzione incendi. Progetto preliminare ed esecutivo di Alberto e Massimo Porro Arch. Associati. Direzione e coordinamento lavori a cura di Alberto Porro.
© 2017, Alberto Porro, All Rights Reserved
IPSEMA (Istituto di Previdenza per il Settore Marittimo) anni: 2000 - 2008 Attività di consulenza nell'ambito della manutenzione edilizia, adeguamento normativo, ristrutturazione funzionale, gestione delle attività cantieristiche e coordinamento della sicurezza. Edificio per uffici Via Cantore, 3 - Genova anni: 2000 - 2002 Richiesta di certificato di prevenzione incendi. Progetto ARP Studio (Arch. G. Arlunno, G.M. Rapetti, Alberto e Massimo Porro Associati) Coordinamento sicurezza interventi di risanamento conservativo CSP/CSE A. Porro Sede compartimentale Via S. Nicola alla Dogana, 9 - Napoli anni: 2005 - 2008 Progetto di manutenzione straordinaria e adeguamento alle norme di prevenzione incendi. Progetto preliminare ed esecutivo di Alberto e Massimo Porro Arch. Associati. Direzione e coordinamento lavori a cura di Alberto Porro.
© 2017, Alberto Porro, All Rights Reserved
Tel. cellulare: 335 7218853
IPSEMA (Istituto di Previdenza per il Settore Marittimo) anni: 2000 - 2008 Attività di consulenza nell'ambito della manutenzione edilizia, adeguamento normativo, ristrutturazione funzionale, gestione delle attività cantieristiche e coordinamento della sicurezza. Edificio per uffici Via Cantore, 3 - Genova anni: 2000 - 2002 Richiesta di certificato di prevenzione incendi. Progetto ARP Studio (Arch. G. Arlunno, G.M. Rapetti, Alberto e Massimo Porro Associati) Coordinamento sicurezza interventi di risanamento conservativo CSP/CSE A. Porro Sede compartimentale Via S. Nicola alla Dogana, 9 - Napoli anni: 2005 - 2008 Progetto di manutenzione straordinaria e adeguamento alle norme di prevenzione incendi. Progetto preliminare ed esecutivo di Alberto e Massimo Porro Arch. Associati. Direzione e coordinamento lavori a cura di Alberto Porro.
© 2017, Alberto Porro, All Rights Reserved