Tel. cellulare: 335 7218853
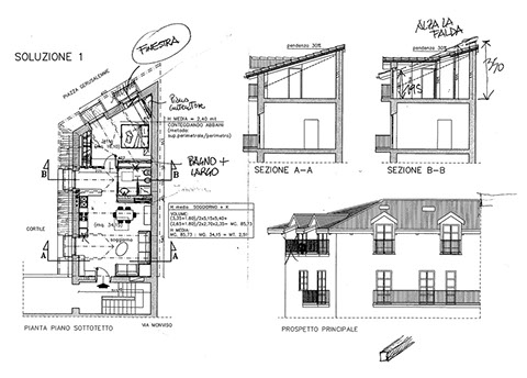
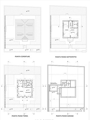
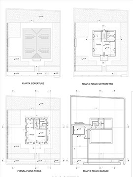
VILLETTA UNIFAMILIARE Viale Tovez, 40/23 - Torino anno: 2008-2012 Opere interne per il recupero di alloggio al piano rialzato. Progetto di ristrutturazione integrale, realizzazione di un nuovo tetto per ampliamento dell'unità immobiliare su tre livelli. Progetto esecutivo, direzione lavori, coordinamento in fase di progetto ed esecuzione ALLOGGIO CON MANSARDA Via Monviso 9 - Milano anno: 2014 Opere interne, recupero del sottotetto e separazione delle unità immobiliari. Progetto esecutivo, direzione lavori, coordinamento in fase di progetto ed esecuzione
© 2017, Alberto Porro, All Rights Reserved
VILLETTA UNIFAMILIARE Viale Tovez, 40/23 - Torino anno: 2008-2012 Opere interne per il recupero di alloggio al piano rialzato. Progetto di ristrutturazione integrale, realizzazione di un nuovo tetto per ampliamento dell'unità immobiliare su tre livelli. Progetto esecutivo, direzione lavori, coordinamento in fase di progetto ed esecuzione ALLOGGIO CON MANSARDA Via Monviso 9 - Milano anno: 2014 Opere interne, recupero del sottotetto e separazione delle unità immobiliari. Progetto esecutivo, direzione lavori, coordinamento in fase di progetto ed esecuzione
© 2017, Alberto Porro, All Rights Reserved
VILLETTA UNIFAMILIARE Viale Tovez, 40/23 - Torino anno: 2008-2012 Opere interne per il recupero di alloggio al piano rialzato. Progetto di ristrutturazione integrale, realizzazione di un nuovo tetto per ampliamento dell'unità immobiliare su tre livelli. Progetto esecutivo, direzione lavori, coordinamento in fase di progetto ed esecuzione ALLOGGIO CON MANSARDA Via Monviso 9 - Milano anno: 2014 Opere interne, recupero del sottotetto e separazione delle unità immobiliari. Progetto esecutivo, direzione lavori, coordinamento in fase di progetto ed esecuzione
© 2017, Alberto Porro, All Rights Reserved
Tel. cellulare: 335 7218853
VILLETTA UNIFAMILIARE Viale Tovez, 40/23 - Torino anno: 2008-2012 Opere interne per il recupero di alloggio al piano rialzato. Progetto di ristrutturazione integrale, realizzazione di un nuovo tetto per ampliamento dell'unità immobiliare su tre livelli. Progetto esecutivo, direzione lavori, coordinamento in fase di progetto ed esecuzione ALLOGGIO CON MANSARDA Via Monviso 9 - Milano anno: 2014 Opere interne, recupero del sottotetto e separazione delle unità immobiliari. Progetto esecutivo, direzione lavori, coordinamento in fase di progetto ed esecuzione
© 2017, Alberto Porro, All Rights Reserved
Tel. cellulare: 335 7218853
  •  

     

VILLETTA UNIFAMILIARE Viale Tovez, 40/23 - Torino anno: 2008-2012 Opere interne per il recupero di alloggio al piano rialzato. Progetto di ristrutturazione integrale, realizzazione di un nuovo tetto per ampliamento dell'unità immobiliare su tre livelli. Progetto esecutivo, direzione lavori, coordinamento in fase di progetto ed esecuzione ALLOGGIO CON MANSARDA Via Monviso 9 - Milano anno: 2014 Opere interne, recupero del sottotetto e separazione delle unità immobiliari. Progetto esecutivo, direzione lavori, coordinamento in fase di progetto ed esecuzione
© 2017, Alberto Porro, All Rights Reserved
VILLETTA UNIFAMILIARE Viale Tovez, 40/23 - Torino anno: 2008-2012 Opere interne per il recupero di alloggio al piano rialzato. Progetto di ristrutturazione integrale, realizzazione di un nuovo tetto per ampliamento dell'unità immobiliare su tre livelli. Progetto esecutivo, direzione lavori, coordinamento in fase di progetto ed esecuzione ALLOGGIO CON MANSARDA Via Monviso 9 - Milano anno: 2014 Opere interne, recupero del sottotetto e separazione delle unità immobiliari. Progetto esecutivo, direzione lavori, coordinamento in fase di progetto ed esecuzione
© 2017, Alberto Porro, All Rights Reserved
Tel. cellulare: 335 7218853
VILLETTA UNIFAMILIARE Viale Tovez, 40/23 - Torino anno: 2008-2012 Opere interne per il recupero di alloggio al piano rialzato. Progetto di ristrutturazione integrale, realizzazione di un nuovo tetto per ampliamento dell'unità immobiliare su tre livelli. Progetto esecutivo, direzione lavori, coordinamento in fase di progetto ed esecuzione ALLOGGIO CON MANSARDA Via Monviso 9 - Milano anno: 2014 Opere interne, recupero del sottotetto e separazione delle unità immobiliari. Progetto esecutivo, direzione lavori, coordinamento in fase di progetto ed esecuzione
© 2017, Alberto Porro, All Rights Reserved